业主是一家四口,喜欢温馨简单的氛围,而新中式风格流畅的造型,简洁明快的色彩,没有多余的奢华装饰,恰好符合业主的要求。同时,考虑到业主家里人口较多,所以对于收纳这方面做了很多设计。

客厅电视墙是简约的装饰,灰白电视柜上边摆着禅意的中式小物件,整体氛围显得轻松又闲适;金属框架的大理石茶几,结合中式风格的沙发,充满了实用闲适的氛围感。

客厅的设计非常简洁,所谓的背景墙也不过是一副“山河”,再将中国园林传统的借景方式运用到此处,让整个空间流动起来,生生不息。也借以表达对自然的敬畏之心。客厅旁的入户转角,靠墙位置装了个小吧台,筒灯下方还布置上了隔层置物架,可以放置书籍等物品,整体充满了精致舒适的氛围感

次卧床头做了个对称的造型,以金黄框架的精致挂画,搭配硬包床头;超温馨飘窗设计,在靠窗位置摆个书架组合书桌,整体实用美观两不误。

父母因年龄层次因素,需要给予更多的关爱与照顾,不论是心理还是身理上。所以从居住环境入手,设计会比其他区域更加温馨细腻。浅色色调,麻布的饰面,温馨的飘窗台,储物柜的设置,治疗床的摆放,让整体空间更加柔软,用最质朴的表达方式来表达我们对于父母深厚的“爱”。

主卧因为面积问题不适合做过多的装饰,所以设计就选取了床头背景作为表达情感设计的切入口,灰白的背景,方形框景,床头柜的小盆栽枝繁叶茂,寓意吉祥。

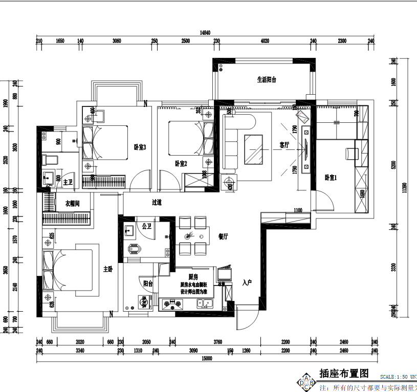
本户型案例格局方正,布局合理,功能区域分布清晰。


